2004 Bari RDB - ferrariarchitetti

Vai ai contenuti
BARI - RIFUNZIONALIZZAZIONE A FUNZIONI TERZIARIE DI UN EDIFICIO NEL QUARTIERE MURATTIANO
RDB-1.jpg
RDB-2.jpg
RDB-3.jpg
RDB-4.jpg
RDB-5.jpg
RDB-6.jpg
RDB-7.jpg
RDB-8.jpg
RDB-9.jpg
RDB-10.jpg
RDB-11.jpg
RDB-12.jpg
RDB-13.jpg
RDB-14.jpg
RDB-15.jpg
RDB-16.jpg
RDB-17.jpg
RDB-18.jpg
RDB-19.jpg
RDB-20.jpg
RDB-21.jpg
RDB-22.jpg
RDB-23.jpg
RDB-25.jpg
RDB-27.jpg
RDB-28.jpg
RDB-29.jpg
anno: 2004
importo: 150.000
categoria: I°c
committente: privato
ruolo: progetto preliminare, progetto definitivo, progetto esecutivo, DD.LL.
impresa: Edil.Co
Stato di fatto
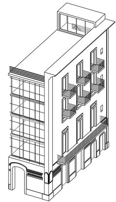
Il piccolo edificio interessato dal nostro progetto di ristrutturazione appartiene ad uno degli isolati "murattiani" tra le vie Abate Gimma, Roberto da Bari, Calefati e Andrea da Bari. Sul fronte principale, quello su via Abate Gimma, l’edificio si presenta con una stretta facciata, composta da una sola campata struttural schiacciata contro gli ornamenti e la massa dell’architettura, tra l’umbertino e l’eclettico, della sede dell'ex Banca S.Paolo, che ne accentua gli aspetti poveri e disadorni. Sulla via secondaria (Roberto da Bari) il prospetto di maggior sviluppo confina con un adiacente condominio degli anni Sessanta che presenta, stranamente - e tra i pochi del murattiano - un sensibile arretramento del filo della facciata nei piani superiori al piano terra; solo lo sbalzo dei balconi recupera l’allineamento con la strada.
L’edificio, realizzato con muratura portante, copre interamente il piccolo lotto d’angolo dell’isolato e si presenta con una forma edilizia povera, priva delle solite connotazioni ornamentali che caratterizzano gli edifici coevi del murattiano; i balconi si aprono su una facciata non interrotta da alcun marcapiano, con piccoli sporti protetti da una semplicissima ringhiera in ferro, che solo al balcone del primo piano vede un accenno di decorazione nel movimento arcuato di uno dei ferri orizzontali. Le decorazioni al piano terreno consistono in una piccola edicola in pietra posta sull’angolo e in una fascia in stucco, con una decorazione vagamente liberty, corrente sulla parte alta delle porte, aggiunta dall’arch. Signorile Bianchi in una ristrutturazione operata intorno agli anni Quaranta. L’edificio è stato oggetto di una sopraelevazione che ha aggiunto, forse in due tempi successivi, il 2° e il 3° piano.
Il fabbricato è composto, oltrechè dal piano terra, da tre piani fuori terra di altezza netta interna sensibilmente diversa.
La struttura verticale è in muratura portante ed è costituita dai due muri ortogonali delle facciate esterne e dai simmetrici muri aderenti ai fabbricati confinanti. Tra queste murature sono portati i solai orizzontali, a volta solo nell’interrato, con sistemi misti (in parte a volta e in parte in ferro e tavelle) al piano terreno; nei piani superiori i solai sono sempre in ferro, con putrelle e voltine in laterizio. Nonostante l’affioramento nel pozzo citato dell’acqua di falda (a circa 4-5 metri sotto il livello della strada), l'interrato si presenta perfettamente asciutto e privo di qualsiasi traccia di umidità.
L’edificio non è interessato da vincoli di interesse storico artistico (ex L. 1089/39 o L. 1497/39). La sua natura privata non fa scattare neppure il vincolo per gli edifici ultracinquantennali, riferito solo agli edifici pubblici. Inoltre, l’edificio manca di connotazioni architettoniche degne di interesse: anche il piano terra, è stato modificato ed “ornato”, ma con motivi decorativi falsi rispetto all’epoca (anni Quaranta) della loro applicazione sulla preesistente struttura. La facciata su via Abate Gimma presenta inoltre un evidente e stridente contrasto rispetto al confinante edificio del Banco San Paolo, con un accostamento architettonicamente non risolto, come evidenziano le fotografie dello stato di fatto.

Descrizione del progetto.
Il progetto di ristrutturazione proposto mantiene la destinazione terziaria al piano terra e destina ad attività terziarie (uffici, anche di uso pubblico) i piani superiori. In particolare, tutti i piani superiori al primo costituiranno una struttura funzionale unitaria operante su piani diversi, da destinare ad uffici. Il progetto non modifica il volume dell’attuale edificio e ne mantiene quindi inalterata la volumetria esistente.
All’interno dell’edificio viene sostituita la scala (attualmente troppo stretta per consentire una accessibilità corretta) con una nuova struttura a due rampe a norma per l’uso pubblico a cui può essere destinato l’edificio. Questa scala prende luce ed aria sia dalle preesistenti luci legali aperte verso il cortile interno, sia dalle esistenti aperture su strada, liberate dai soppalchi che attualmente le separano dalla scala. L’accesso ali portatori di handicap viene garantito dall’abbattimento in tutto l’edificio delle barriere architettoniche e dalla presenza di un ascensore (idraulico), di dimensione conforme a quanto richiesto dalla normativa, posto accanto alla scala. Nella parte restante tra il vano ascensore e la parete esterna sono sistemati i locali igienici, anch’essi a norma delle leggi per l’abbattimento delle barriere architettoniche.
Considerato lo stato delle strutture esistenti e la necessità di aumentarne considerevolmente la portata in relazione all’uso per uffici dei piani superiori (400 kg/mq), si opera all’interno una sostituzione dei solai fuori terra. Al posto delle attuali strutture in putrelle di ferro e laterizio, si montano nuovi solai sempre di tipo metallico, strutturati in modo da garantire anche la stabilità della parete esterna su via Roberto da Bari. Lo spazio tra il primo solaio (m. 4,95) e il solaio di copertura (m. 18,04) viene suddiviso in parti uguali, ricavando quattro piani, ciascuno di altezza lorda di m 3,27 e di altezza netta di m. 3,00, e quindi rispondenti alla normativa relativa all’altezza dei piani abitabili. Nella rimodellazione di questo spazio si inserisce così un nuovo piano che riceve la luce necessaria dalle aperture su via Gimma. Questo piano, collocato al secondo livello sopra il piano terra, risponde alle norme per i soppalchi, come fissate dall’art. 91 del vigente Regolamento edilizio.
Viene mantenuta pressoché inalterata la facciata lungo via Roberto da Bari, sostituendo e riposizionando gli attuali balconi dei due livelli superiori, con altri simili, ma con struttura a sbalzo di acciaio, direttamente collegata a quella dei solai interni. Le aperture su via Abate Gimma vengono ampliate fino a diventare una intera parete vetrata, più che sufficiente per dare luce al retrostante locale di 10 metri di profondità, anche quando non integrata dai balconi laterali. Il suo orientamento a nord garantisce da fenomeni di eccessiva insolazione, con riscaldamento del vetro e conseguente fastidiosa trasmissione di calore per irraggiamento.
La parete vetrata serve anche a risolvere il rapporto del volume dell’edificio con quello della massa dell’Istituto bancario S.Paolo, oggi particolarmente stridente. Contestualmente, la quinta muraria dell’altra facciata conserva e completa l’apparato decorativo del piano terra; l’accentuazione del cornicione terminale valorizza la presenza della struttura edilizia precedente, enfatizzandola con la presentazione “di taglio” della muratura sull’angolo, con un calcolato “effetto-sezione” . Ricordiamo che sull’edificio non insistono vincoli ambientali e che lo stesso è privo di valori architettonici da salvaguardare: la povertà dell’apparato edilizio, la modestissima dimensione della facciata su via A.Gimma soccombono nell’attuale squilibrato rapporto con la massa delle decorazioni e con l’ordine gigante delle paraste del confinante edificio della banca S. Paolo.
Torna ai contenuti